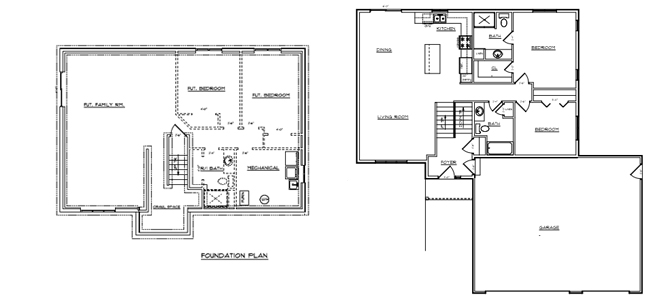
Square Feet:
1,227
Bedrooms:
2
Bathrooms:
2

2 Bed, 2 Bath Split Level

Explore the charm of our 1,227 square foot custom-built split-level home, a thoughtful blend of efficiency and potential. The upper floor features two bedrooms and two bathrooms, including a master bathroom. The open design fosters a sense of connectivity, creating a welcoming living space. With an unfinished basement, this home opens up exciting possibilities, allowing for the addition of two more bedrooms, a bathroom, and a family room. This unique feature provides the flexibility to customize and expand the living area according to your evolving needs.

Floorplan 13 drawing