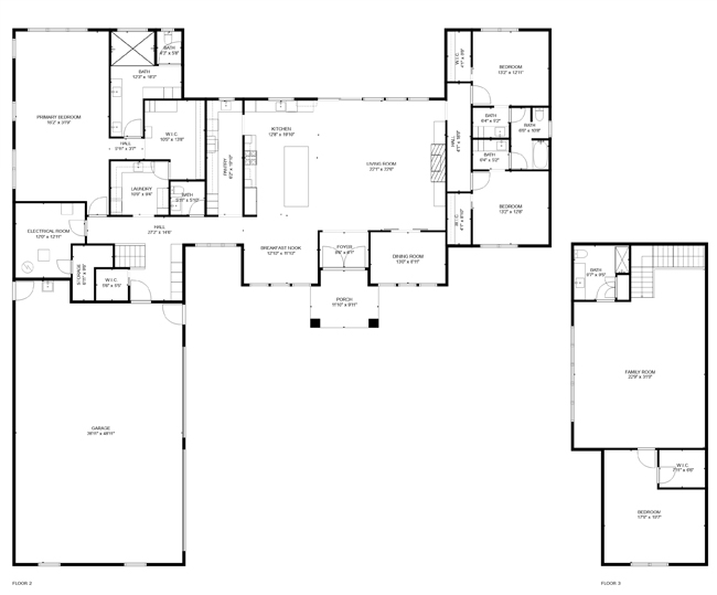
Square Feet:
4,500
Bedrooms:
4
Bathrooms:
4

4 Bed, 4 Bath Slab on Grade

Custom Home in Lindstrom, MN
This stunning 4,500 sq. ft. custom home by Picotte Custom Homes showcases the perfect blend of modern design and country charm. Nestled in scenic Lindstrom Minnesota, this spacious 4-bedroom, 4-bathroom home features warm exposed wood beams, elegant black and gold finishes, and expansive family living areas built for both comfort and entertaining. The heart of the home is a bright, open kitchen with sleek cabinetry and breathtaking views. The spa-inspired bathroom offers a retreat-like atmosphere with dual vanities, arched mirrors, and a large walk-in shower. Every detail has been thoughtfully crafted with timeless design in mind. Outside, a large custom-built pole barn adds functionality to the property that's perfect for storage, hobbies, or workspaces complementing the home’s blend of modern luxury and rural practicality. This home is a true reflection of what Picotte Custom Homes delivers: handcrafted quality, elevated design, and the freedom to live the way you want.